معماری سازمانی انتخاب ایتالیا لاسپتسیا استودیو Manfroni و Associati SRL
Building A / Studio Manfroni & Associati

Architects: Studio Manfroni & Associati
Location: La Spezia, Italy
Architect In Charge: Mario Manfroni, Patrizia Burlando, Danilo Sergiampietri, Daniela Cappelletti
Project Year: 2012
Photographs: Roberto Buratta
Project Area: 6,750 sqm
Structural Engineering: Exa engineering srl, La Spezia, Italy
The project involves the construction of a new tertiary pole through the urban reorganization of sub-district 8 in the former IP refinery in the north-east of La Spezia.

The main project target is to reuse the non-permeable area, preserving the green frame behind it: the new building is localized in the existing parking area.

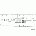
The four storey building is characterized by a double-facing and take a soft and tapered shape emphasized by the evident bevel angles. It consists of a basement and ground floor where you can watch free pillars supporting the upper floors closed in a more compact volume.

On the ground floor there are areas with independent access, while the areas for tertiary use are on the upper floors.

Externally, the project has a horizontal partition of the facades showing further the string courses.

Within the string courses, which correspond to the three upper floors of the building, the ratio between full and empty (cladding panels and windows) can change over time according to the needs of interior spaces, without affecting the general balance of the whole facade surface.

- © Roberto Buratta
- © Roberto Buratta
- © Roberto Buratta
- © Roberto Buratta
- © Roberto Buratta
- © Roberto Buratta
- © Roberto Buratta
- © Roberto Buratta
- © Roberto Buratta
- © Roberto Buratta
- © Roberto Buratta
- © Roberto Buratta
- © Roberto Buratta
- © Roberto Buratta
- © Roberto Buratta
- Plan 01
- Plan 02
- Plan 03
- Plan 04
- Details 01
- Details 02
- Section 01
- Elevation 01























با اهداء سلام