براتیسلاوا Culenova مرکز شهر جدید
Bratislava Culenova New City Center Proposal / Zaha Hadid Architects
The design for the Bratislava Culenova New City Center by Zaha Hadid Architects is based on a dynamic field strategy which aims to organize the city’s new city center program along a gradient of circular and elliptical patterns. In a series of larger tower extrusions, a fluid field emerges from its underlying matrix to activate the ground throughout the whole site and provide public spaces of the highest quality. More images and architects’ description after the break.

The underground car parking is covered by a one storey high modulated platform which is perforated at the strategic points for day-lit spaces that accommodate retailing, landscaped parks, and various points of interest such as the cultural center, museum shop, conference space, and event halls.

Towards the site’s perimeter, the platform is slightly raised at specific points to define the site’s edge and accommodate programmatic points of interest., access points to the parking below, and access to office and residential towers above. At other strategic zones, the platform levels merge with the surrounding city level to link the new urban parks and plazas with the surrounding city fabric.

The scheme creates density via efficient high rise structures while providing and generous and highly activate ground level differentiated within a three-dimensional field condition.
Architects: Zaha Hadid Architects
Location: Bratislava, Slovakia
Design: Zaha Hadid, with Peter Schumacher
Project Architects: Thomas Vietzke and Jens Borstelmann
Design Team: Tom Wuenschmann, Torsten Broeder, Martin Krcha,
Suryansh Chandra, Phillip Ostermeier, Goswin Rothental, Stefan
Rinnebach, Michal Treder
Client: Penta Investments Limited
Gross Floor Area: 150,000 sqm2
Project Year: 2010-2013
- Courtesy of Zaha Hadid Architects
- Courtesy of Zaha Hadid Architects
- Courtesy of Zaha Hadid Architects
- Courtesy of Zaha Hadid Architects
- Courtesy of Zaha Hadid Architects
- site plan
- Courtesy of Zaha Hadid Architects
- Courtesy of Zaha Hadid Architects
- museum plan
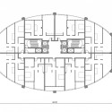
- plan 01
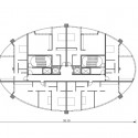
- plan 02
- north elevation
- south elevation
- east elevation
- west elevation
- exoskeleton towers diagram
- Courtesy of Zaha Hadid Architects
- city center diagram
- secondary paths diagram
- structure artificial landscape diagram
- structural detail






















با اهداء سلام